Back to Search Results
Available: 01/09/2026
£1595 pcm

Kingsway, Stoke

Coventry
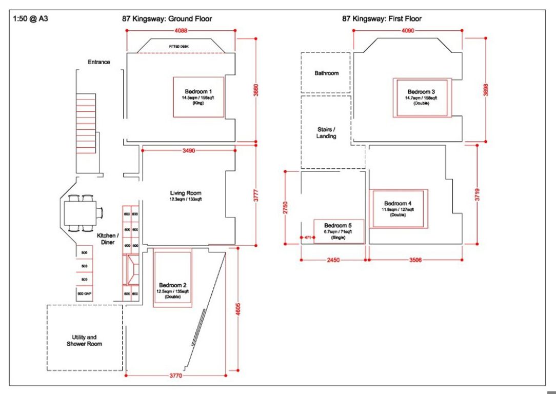
** AVAILABLE SEPTEMBER 2026 ** 87 Kingsway is a spacious, ideally presented five bedroom semi-detached property. Refurbished & decorated Summer 2021. 5 Double bedrooms, all fully furnished with plenty of storage and desk space. 2 Bathrooms, one on the first floor with bath/shower, toilet, basin and the other with shower, toilet, basin located on the ground floor. An enormous sized kitchen with double range gas cooker, vast storage and dining area provided with modern dining table and chairs. All white goods included with washing machine in a separate utility room area Cosy lounge fitted with plenty of seating, coffee and side tables as well as a wall mounted smart Tv. To the exterior of the property there is a large rear courtyard area parking for multiple cars. Excluding utilities
  • 5 Double Bedrooms
  • Spacious kitchen
  • 2 Bathrooms
  • Off road parking for multiple cars
  • 15 Minute walk to university
  • Redecorated & refurbished summer 2021
  • Separate lounge
  • Including utilities option available at a higher rate
  • Wall mounted smart TV in lounge

Deposit: £1595

5 Bedrooms

2 Bathrooms

Semi-detached

Request A Viewing

Kingsway, Stoke / Kingsway

    By submitting this enquiry form, I consent to receiving information relating to my property search. For further information on how FutureLets uses your personal information please view our Privacy Policy.